ADDRESS
4701 S. 19th St
Tacoma, WA. 98406
Due to the health concerns created by Coronavirus we are offering personal 1-1 online video walkthough tours where possible.




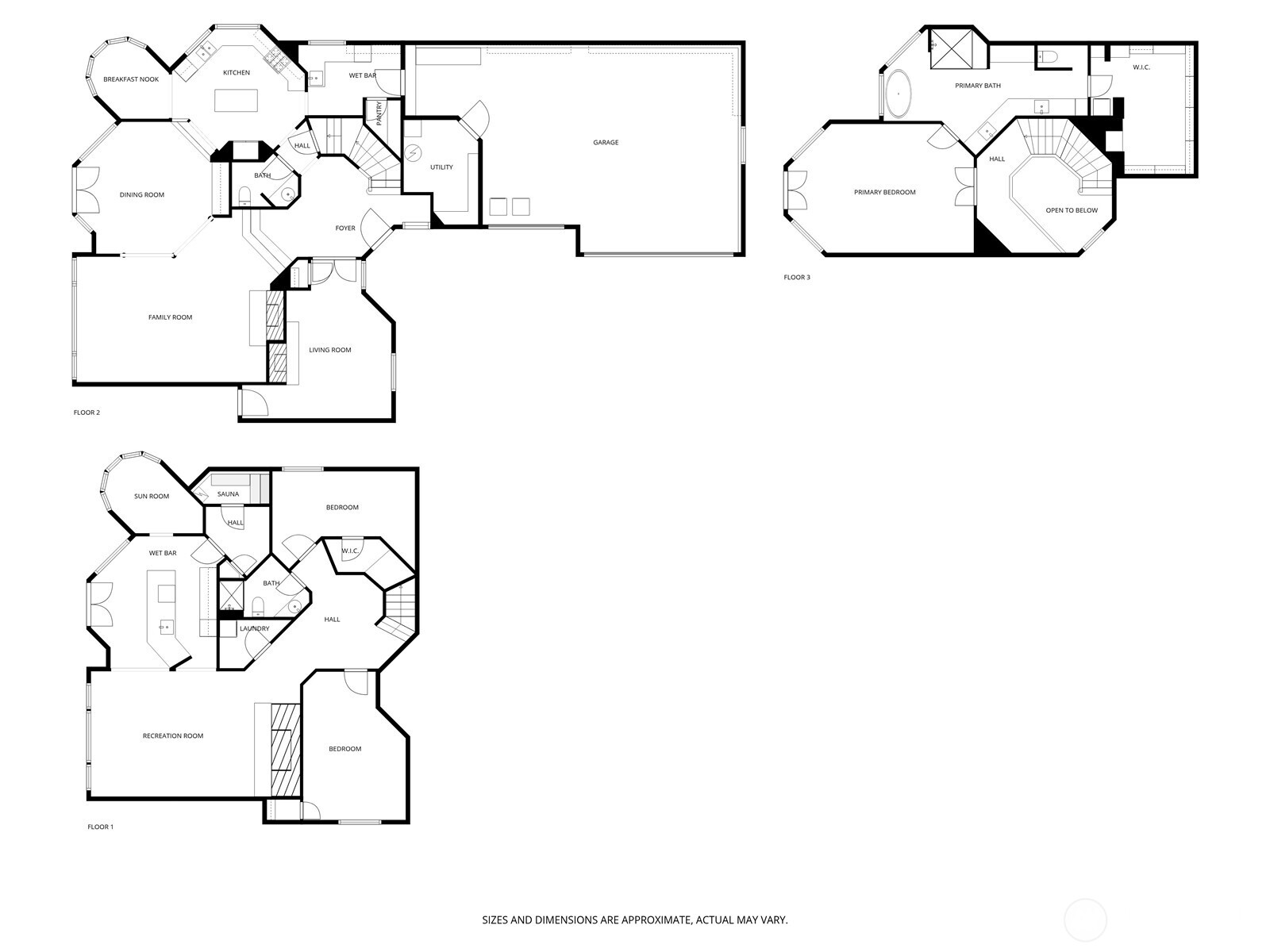
Gracious & comfortable WATERFRONT living. Named "Best American Living Award" by NAHB for its original design to take advantage of 63' of DIRECT WATERFRONT on LAKE STEILACOOM. Dramatic entry feeds to soaring ceilings; walls of glass overlook the lake; open concept kitchen w/ BACK KITCHEN w/ second oven, Fridge, abundant storage. Main level office w/ 1 of 3 Wood Fireplaces; UPPER LEVEL primary w/ dramatic view deck overlooking lake; spa like bath; huge walk-in closet w/ WASH/DRY. Lower level holds SAUNA; wet bar; second WASH/DRY; family room and bedrooms. Freshly updated with styling for today's taste; close to TACOMA COUNTRY AND GOLF CLUB and amenities. A soothing setting with unique design; imagine the lifestyle; breathe and take it in.
| 6 days ago | Listing updated with changes from the MLS® | |
| 6 days ago | Status changed to Pending | |
| 3 weeks ago | Listing first seen on site |
Did you know? You can invite friends and family to your search. They can join your search, rate and discuss listings with you.